
Lokalizacja:
Kazachstan, Astana
Rok projektu:
2021
Status:
Zrealizowany w 2025
Powierzchnia domu:
3601,24 m2
Wykonano:
Architektura
Wizualizacja
Autorzy:
Kirill Skorynin
Jewgienij Kanonik

Big Big Villa to kompleks Premium dla całej rodziny. Znajduje się w Astanie, w pobliżu dzielnicy mieszkalnej AKBULAK Riviera, również opracowanej przez nas wcześniej. Dzięki doborowi takiej lokalizacji właściciele otrzymują wszystkie zalety dóbr miejskich w połączeniu z poczuciem wiejskiego życia.
Główne pragnienie klienta-stworzenie dużego domu dla bliskich i gości-posłużyło za podstawę funkcjonalnego programu. Na terenie prawie 2 ha zaprojektowano 5 obiektów: budynek mieszkalny, Salon samochodowy,
kryty kort tenisowy, oranżeria i altana.

1. Altana 2. Budynek mieszkalny 3. Szklarnia 4. Kryty kort tenisowy 5. Autosalon
Parametry obiektu podyktowała kazachska tradycja: wszyscy członkowie rodziny mieszkają w jednym dużym domu. W tego typu domach nie da się obejść bez pomocy. Dlatego pomyśleliśmy o funkcjonalnym programie w następujący sposób,
aby uwzględnić trasy zarówno mieszkańców, jak i personel.
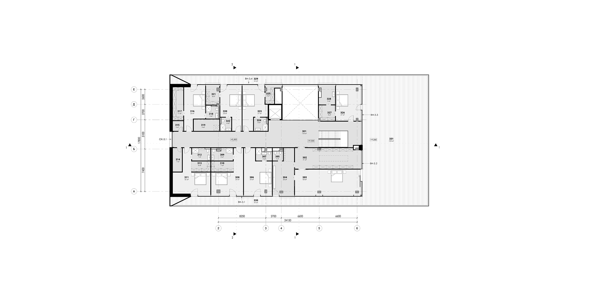
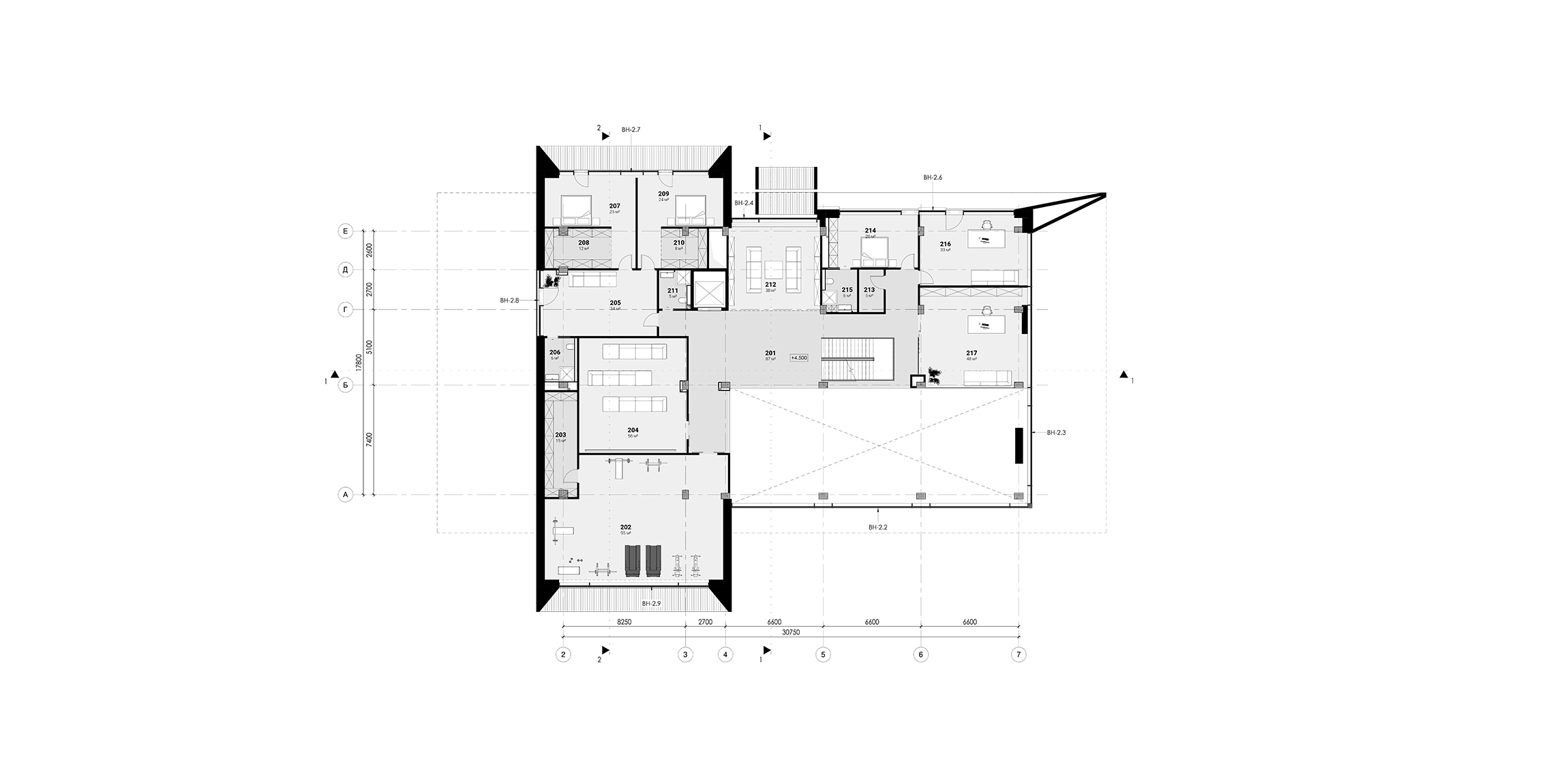
Jeszcze przed rozpoczęciem projektowania klient miał własne wyobrażenie o układzie domu. Zaprojektowaliśmy
12 sypialni, niektóre sypialnie główne, a niektóre sypialnie z własną łazienką.
Takie rozwiązanie zapewnia maksymalny komfort mieszkańcom.
Klient początkowo wiedział, że chce stworzyć imponującą, plastyczną objętość domu. Konsole, różne
od 6 do 9 metrów, stały się podstawowymi elementami w rozwoju pożądanego obrazu.
Rzeźbiarstwo osiągnęliśmy dzięki lakonicznym rozwiązaniom, które działają nie tylko jako dekoracja,
ale mają też swoją funkcję. Na przykład stwórz cień na tarasach.
Wybraliśmy ograniczoną paletę kolorów: panele antracytowe HPL, mlecznobiały beton z włókna szklanego
i aluminiowe panele kompozytowe w kolorze miedzi.
Ostatni materiał obramowuje i akcentuje grupę wejściową. A także podkreśla «teleskopową» objętość, która przecina całe trzecie piętro.
W «teleskopie», od strony wewnętrznej przestrzeni terytorium, znajduje się siłownia.
Dzięki niestandardowej strukturze z nachyleniami, rozwiązanie akcentu pozwala poczuć wciągające nurkowanie w panoramę miasta podczas uprawiania sportu.

W strefie głównego salonu, serca domu, zastosowano okno z podwójnymi szybami 7×3, 2 M.jest to maksymalny możliwy rozmiar, jaki może wytrzymać podsystem elewacyjny. Pomimo surowego klimatu Astany udało nam się wdrożyć takie rozwiązanie.
Oprócz aktywnego oświetlenia salonu naturalnym światłem, przeszklenia na dużą skalę z powodzeniem sprawdzają się również w projektowaniu krajobrazu. Odbicie krajobrazu w szkle harmonijnie wtapia obiekt w otoczenie, replikując pobliską rzekę.
Zaprojektowaliśmy kilka tarasów. Pierwszy, główny, do posiłków i spotkań całej rodziny w sezonie zimowym. Witryna jest zorientowana na północ dla dodatkowego cieniowania. Drugi z ogrodem japońskim, do którego można dostać się z domowego biura. Ta ostatnia znajduje się na najwyższym piętrze i stanowi miejsce na spokojny wypoczynek.

Salon samochodowy, kryty kort tenisowy, szklarnia i altana zostały zaprojektowane w stylu podobnym do budynku mieszkalnego.
Wszystkie dodatkowe budynki wykonane są na bazie metalowej ramy.
W tym projekcie tożsamość architektoniczna całkowicie wynika z kontekstu, uwzględnia lokalne tradycje,
aktualne trendy i codzienne życie.
Big Big Villa udowadnia, że nowoczesną architekturę koncepcyjną można tworzyć
nawet w trudnych warunkach klimatycznych.